M90螺栓拧紧用哪个液压扳手用型号?
2022-11-29 mk体育在线注册,mk体育(中国)
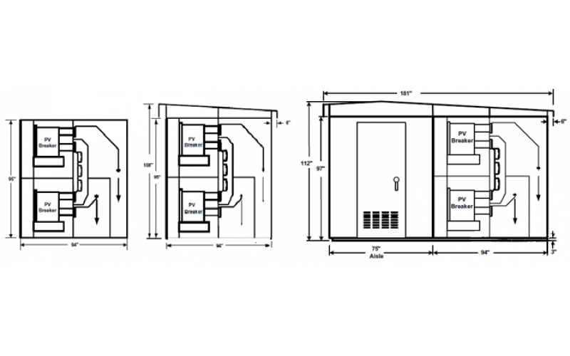
户外环网柜知识介绍分享
电感式接近开关的原理及使用分享
2022-11-28 mk体育在线注册,mk体育(中国)
IEEE标准真空断路器要求
IEEE标准中压开关柜要求
KWZK-GM系列安全光幕的应用简介
2022-11-25 mk体育在线注册,mk体育(中国)
水处理常用阀门知识介绍
大型视频监控网络系统如何规划ip地址?